ザ・上本町タワー 1009号室
価格変更あり(7日以内)

2026年2月17日 リニューアル済
価格
8,980万円
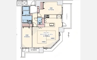
間取り
2LDK
専有面積
72.43㎡
築年月
2009年6月
大阪府大阪市天王寺区筆ケ崎町6-12
近鉄大阪線「大阪上本町駅」徒歩9分
物件概要
物 件 名
ザ・上本町タワー
所 在 地
大阪府大阪市天王寺区筆ケ崎町6-12
価 格
8,980万円
交 通
近鉄大阪線「大阪上本町駅」徒歩9分
築 年 月
2009年6月
階/号室
10階/1009号室
地上階層
37階
地下階層
-----
建物構造
鉄筋コンクリート造(RC)
総 戸 数
267戸
専有面積
72.43㎡
間 取 り
2LDK
バルコニー面積
12.2㎡
バルコニー方向
北
管 理 費
11,440円
修繕積立金
9,480円
管理形態
管理会社に全部委託
管理会社
近鉄住宅管理株式会社
駐車場存否
有(空き状況・使用料は要確認)
土地権利
所有権
現 況
空家
引渡時期
即時
取引態様
媒介
物件ID
03891
改装内容
■システムキッチン ■食洗機 ■トイレ ■ユニットバス ■洗面化粧台 ■防水パン ■給湯設備 ■フローリング ■フロアタイル ■クロス ■ハウスクリーニング
備 考
ペット飼育相談(要承認・飼育細則有)、専用利用料 月額1,365円・町会費 年額1,200円・新耐震基準(築年月より推定)・住宅ローン控除対象(条件あり)
周辺地図
他にも多数の物件を取り揃えております 。お気軽にお問い合わせください。
条件の近い物件
(大阪市天王寺区)
6,280万円
2LDK 71.06㎡
大阪メトロ谷町線「四天王寺前夕陽ヶ丘駅」徒歩4分
近鉄大阪線「大阪上本町駅」徒歩12分
大阪環状線「桃谷駅」徒歩13分
近鉄大阪線「大阪上本町駅」徒歩12分
大阪環状線「桃谷駅」徒歩13分










